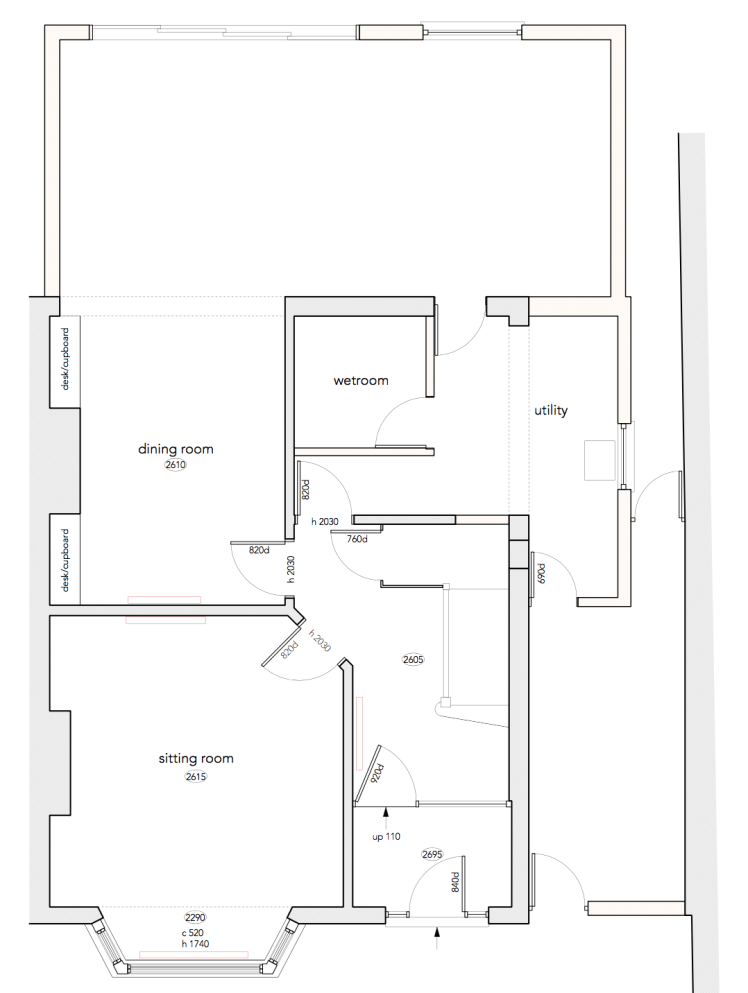
So we have had a bit of time to go round in circles with how we wanted to design the new kitchen extension… Initially I was adamant I wanted a separate office downstairs as we are both self employed, but this compromised the downstairs space for a wetroom/utility and a few issues with the flow of the house. So, the other day I was sitting in the dining room with the dogs sleeping on the armchair in the corner and I realised that as our dining table will be in the big area of the kitchen, we can use it as a ‘work station’ during the day, and then I thought maybe we can build 2 office units (a bit like these on Pinterest) into the alcoves either side of the fireplace that will then hide any office equipment in the evenings or when we aren’t working.
I am a big fan of everything having a home, so this will avoid cluttering up the house and as the dining room is quite large, theres plenty of space for it to be a great part of the living space.
It also means we can make a great sized utility. With 2 dogs and hobbies such as surfing and cycling, we need space that wont mean mud, sand and clutter filling the kitchen. There is an access round the side of the house to an existing garden and shed, but we will be knocking these down therefore will create a storage area at the side of the house which can house bikes and surfboards etc. From here you can then either go straight through into the garden, or into the utility. I hate having washing in the spare room, so I wanted enough space to hang the washing, wash the dogs and wetsuits etc… Losing a study means we can also create a nice big downstairs wetroom/WC which will be great as you will access it from the kitchen as well as the hallway. This also gives me an extra wall to decorate which will be cool to see another room from the hallway as originally this was going to be blocked off.
I am going to write some blogs over the next could of weeks about things that we are currently discussing; flooring, underfloor heating, kitchen set up, roofing and windows, so stay tuned!
