Welcome to And Life In-Between. This site offers a bit of everything that makes me tick, from renovating our houses to craft, cooking.. and life in between. Hope you enjoy!
Designing the extension layout
June 11, 2017
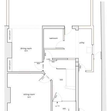
So we have had a bit of time to go round in circles with how we wanted to design the new kitchen extension… Initially I was adamant I wanted a separate office downstairs as we are both self employed, but this compromised the downstairs space for a wetroom/utility and a few issues with the flow … More Designing the extension layout


